搜索


会员资源切换至【手机版】

切换本帖至【手机版】


开启左侧

ETFE膜结构技术与设计 ETFE Technology and Design

[复制链接]
发表于 2021-8-5 23:31:11 | 显示全部楼层 |阅读模式
下载备注说明:


  • 1.有些P2P资源共享较早,会出现无源或暂时无源的情况,如果您喜欢它,请耐心挂机等待。


  • 2. 有些磁力链接无法自动解析,比如:


    [url=magnet:?xt=urn:btih:E1346C46C3736056756E98D2EC22A383D7D2600F&dn=[www.books51.com]太阳之下_幸福北韩 Under.the.Sun.2015.DOCU.1080p.WEB-DL.AAC2.0.H264-FGT 4GB]点击下载[/url]



    可自行选择字符


    [url=


    红色为磁力地址


    ]点击下载


    之间的内容 (红色字符代表要复制的磁力链接代码,选择后点击CRTL+C 复制到下载工具中




  • 游客,本帖隐藏的内容需要积分高于 1 才可浏览,您当前积分为 0


    资源信息:



    中文名


    : ETFE膜结构技术与设计


    英文名


    : ETFE Technology and Design


    发行时间


    : 2008年


    地区


    : 美国


    对白语言


    : 英语


    文字语言


    : 英文


    概述


    :



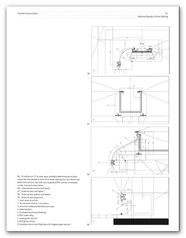
    ETFE的中文名为乙烯-四氟乙烯共聚物。ETFE膜材的厚度通常小于0.20mm,是一种透明膜材。 2008年北京奥运会国家体育馆及国家游泳中心等场馆中将采用这种膜材料。   乙烯-四氟乙烯共聚物膜作为结晶性高聚物,熔点为256~280℃。烯烧时可自熄。其抗剪切机械强度高,耐低温冲击性能是现有氟塑料中最好的,从室温到-80℃都能够有较高的冲击强度,化学性能稳定,电绝缘性和耐辐照性能好。ETFE薄膜的实际使用始于上世纪90年代,主要作为农业温室的覆盖材料、各种异型建筑物的篷膜材料,如运动场看台、建筑锥型顶、娱乐场、旋转餐厅篷盖、娱乐厅篷盖、停车场、展览馆和博物馆等。英国新千年应典工程之一的“伊甸园”有“世界第八大奇观”之美誉。它由4座穹顶状建筑连接组成的全球最大温室,上面覆盖着由ETFE薄膜材料制成的透明盖板,其质量只有相同面积玻璃质量的1%,透明薄片可以回收利用,并具有良好的保温性。   ETFE膜是透明建筑结构中品质优越的替代材料,多年来在许多工程中以其众多优点被证明为可信赖且经济实用的屋顶材料。该膜是由人工高强度氟聚合物(ETFE)制成,其特有抗粘着表面使其具有高抗污,易清洗的特点。通常雨水即可清除主要污垢。   ETFE膜使用寿命至少为25-35年,是用于永久性多层可移动屋顶结构的理想材料。该膜材料多用于跨距为4米的两层或三层充气支撑结构,也可根据特殊工程的几何和气候条件,增大膜跨距。膜长度以易安装为标准,一般为15-30米。小跨度的单层结构也可用较小规格。   ETFE膜达到B1、DIN4102防火等级标准,燃烧时也不会滴落。且该膜质量很轻,每平方米只有0.15-0.35公斤。这种特点使其即使在由于烟、火引起的膜融化情况下也具有相当的优势。   根据位置和表面印刷的情况,ETFE膜的透光率可高达95%。该材料不阻挡紫外线等光的透射,以保证建筑内部自然光线。通过表面印刷,该材料的半透明度可进一步降低到50%。根据几何条件及膜的层数,其K值可高达2.0W/m2K。耗能指数以一个三层印刷的膜为例可达到0.77。   由于其优秀品质,ETFE膜几乎不需日常保养。可对其由于机械损坏的屋顶进行简单检查(一年一次为宜),并根据需要就地维修。同时也可检查通风系统,更换过滤装置。   ETFE膜完全为可再循环利用材料,可再次利用生产新的膜材料,或者分离杂质后生产其它ETFE产品。   国家奥林匹克游泳馆水立方就是用ETFE膜制成的。   ETFE(F-40)氟塑料来源于美国杜邦公司和日本旭硝子公司,主要应用于防腐蚀衬里。该材料具有聚四氟乙烯的耐腐蚀特性,同时又有对金属特有的较强粘着特性,克服了聚四氟乙烯对金属的不粘合性缺陷,加之其平均线膨胀系数接近碳钢的线膨胀系数,使ETFE(F-40)成为和金属的理想复合材料,具有极优良的耐负压特性。









    希望下载完的朋友们多多做源,不要删除。我电脑空间有限,并且供应其他新的资源,上传完毕后将移到移动硬盘。如果一段时间后发现无源,请通知我,发短消息或者发邮件至zhumingzhou1990@sina.com(请不要向我发送垃圾邮件,谢谢),本人确认无源后重新做源或者提供网盘下载地址;请大家自觉,不要因电驴的速度慢而向我发邮件,要想提高下载速度只能靠大家共同上传



    [以上链接全部来自互联网,仅用于学习用途,请下载24小时后删除。 版权归出版社所有,如果你喜欢,请购买正版书籍] 买鞋子哪个网站好?首选中国最大的正品鞋网商城(http://shoes.weixiaodian.com/)、 网上正品鞋城(http://u.weixiaodian.com/shoe/)。微店网页版请从http://121.weixiaodian.com登录:手把手教你如何免费申请开通微店、怎样经营微店及如何用微店赚钱。看笑话,上


    爱哈啦


    (http://www.aihala.com/)。

    主题推广




    回复

    使用道具 举报

    您需要登录后才可以回帖 登录 | 立即注册

    本版积分规则

    切换至【手机版】| 主站| Archiver|

    JS of wanmeiff.com and vcpic.com Please keep this copyright information, respect of, thank you!JS of wanmeiff.com and vcpic.com Please keep this copyright information, respect of, thank you!

    |网站地图

    GMT+8, 2026-3-24 23:34 , Processed in 1.095943 second(s), 68 queries .

     

    快速回复 返回顶部 返回列表