搜索


会员资源切换至【手机版】

切换本帖至【手机版】


开启左侧

ProSteel 3D 17.1 for AutoCAD 钢结构工业英文

[复制链接]
发表于 2021-7-29 21:16:14 | 显示全部楼层 |阅读模式
下载备注说明:


  • 1.有些P2P资源共享较早,会出现无源或暂时无源的情况,如果您喜欢它,请耐心挂机等待。


  • 2. 有些磁力链接无法自动解析,比如:


    [url=magnet:?xt=urn:btih:E1346C46C3736056756E98D2EC22A383D7D2600F&dn=[www.books51.com]太阳之下_幸福北韩 Under.the.Sun.2015.DOCU.1080p.WEB-DL.AAC2.0.H264-FGT 4GB]点击下载[/url]



    可自行选择字符


    [url=


    红色为磁力地址


    ]点击下载


    之间的内容 (红色字符代表要复制的磁力链接代码,选择后点击CRTL+C 复制到下载工具中




  • 游客,本帖隐藏的内容需要积分高于 1 才可浏览,您当前积分为 0


    资源信息:



    中文名


    : ProSteel 3D 17.1 for AutoCAD 钢结构工业


    版本


    : 英文


    发行时间


    : 2006年


    概述


    :



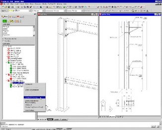
    [已通过安全检测]Kaspersky Anti-Virus 6.0 共享服务时间:每天:8点至24:30点 共享服务器:DonkeyServer No1 . DonkeyServer No5 [已通过安装测试]WinXP+SP2和WIN2003专业版 软件版权归原作者及原软件公司所有,如果你喜欢,请购买正版软件 ProSteel 3D 17.1 for AutoCAD (钢结构工业): ProSteel 3D 是一款面向对象基于AutoCAD的3D 钢材结构程序,它使用了最新的ARX技术。在钢结构工业如:结构工程、钢结构建造等应用中非常有用。建模和细节软件共有三个版本。该软件可以用于AutoCAD!ProSteel 3D是一个全参数化(Parametric)并以资料库为导向(Spec-Driven)的三维钢结构绘图设计,及施工图(Shop drawing) ,ProSteel 3D是以最先进的物件导向为基底发展而成,主要应用于钢结构设计(如厂房、大楼、车站、铁塔等),让使用者能够从结构 ...



    更多简介见:http://www.auto-soft.com.tw/021_prosteel.asp



    ProSteel 3D由Kiwi Software GmBH开发,是全球著名的的三维钢结构建模、详图和生产控制软件系统。该软件的研制开始于1987年,是全球第一家基于AutoCAD图形平台的三维钢结构详图软件,开发总部位于德国,并在新西兰、中国、加拿大拥有开发部门。用户通过ProSteel 3D软件可以方便地建立各种复杂钢结构的三维模型,从模型中自动提取各种布置图和构件详图,并生成汇总材料表。ProSteel 3D提供了数据接口连接结构计算软件、数控机床、钢结构生产计划和管理软件。目前,目前,ProSteel软件被广泛应用于世界各地的多高层建筑、民用建筑、大型体育场馆、工业建筑、桥梁、近海工程和其它钢结构工程中,在全球已经拥有5100多个用户。针对中国市场特点、型钢类型和节点形式,公司对ProSteel 3D进行了二次开发,推出了低价适用的中文版。同时,在ProSteel 3D提供的COM平台上,公司可以针对客户特殊需求扩展系统功能。

    主题推广




    回复

    使用道具 举报

    您需要登录后才可以回帖 登录 | 立即注册

    本版积分规则

    切换至【手机版】| 主站| Archiver|

    JS of wanmeiff.com and vcpic.com Please keep this copyright information, respect of, thank you!JS of wanmeiff.com and vcpic.com Please keep this copyright information, respect of, thank you!

    |网站地图

    GMT+8, 2026-3-24 03:41 , Processed in 0.938917 second(s), 70 queries .

     

    快速回复 返回顶部 返回列表